5

Carrickavee, Ballyjamesduff Co Cavan

1 Bath, Site. In the Region of. €25,000. Viewing Strictly by appointment

  • Property Ref: 1731
  • 1 Bath

For sale by Martin Shortt Auctioneers via the iamsold Bidding Platform
Please note this property will be offered by online auction (unless sold prior). For auction date and time please visit iamsold.ie. Vendors may decide to accept pre-auction bids so please register your interest with us to avoid disappointment.

Circa 0.72 acre site.

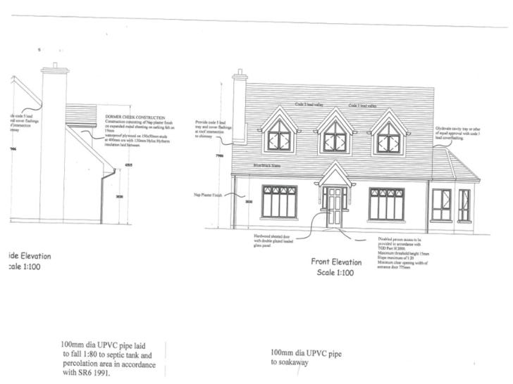
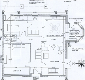
An attractive circa 0.72 acre landholding located in the popular rural area of Carrickavee, Ballyjamesduff, Co. Cavan. The property is contained within Folio CN29227F and offers excellent potential for the development of a detached family residence, subject to the necessary planning permissions.

Plans are available for a spacious four-bedroom detached home, making this an ideal opportunity for owner-occupiers or self-builders seeking to create a bespoke home in a peaceful countryside setting.

The site enjoys a convenient location, situated approximately 5 minutes from Ballyjamesduff, 15 minutes from Virginia, 25 minutes from Cavan Town, and circa 30 minutes from Kells, providing easy access to local services, schools and commuter routes while retaining a strong rural feel.

A rare opportunity to acquire a generously sized site in a desirable and well-connected location.

Auctioneers Comments: This property is offered for sale by online auction (unless sold prior) so please contact us early to avoid disappointment. The successful bidder is required to pay a 10% deposit and contracts are signed immediately on acceptance of a bid. Please note this property is subject to an undisclosed reserve price. Terms and conditions apply to this sale.

Directions
  • beside house eircode A82H6Y4